Wohnraumerweiterung
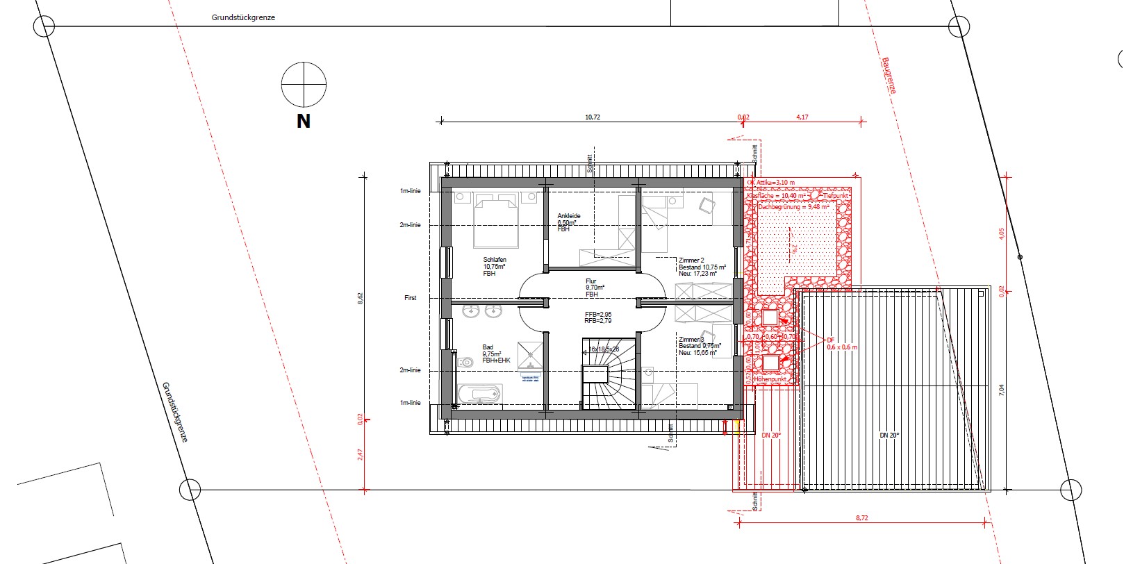
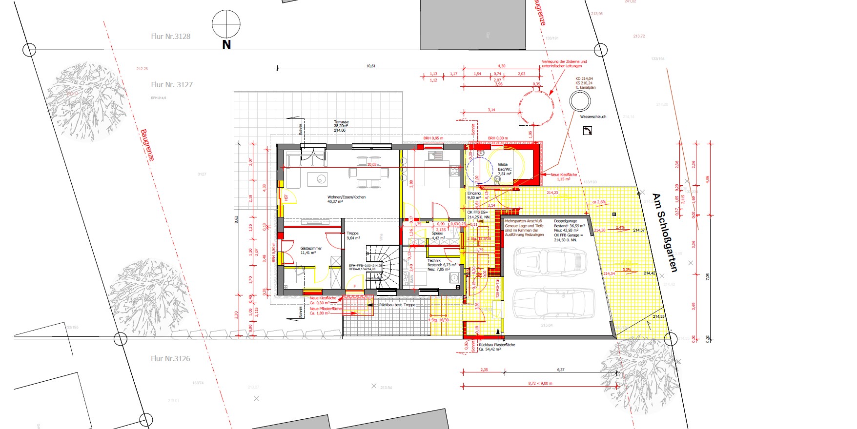
Im Rahmen dieses Projekts wurde eine bestehende Erdgeschosswohnung bedarfsgerecht erweitert und funktional neu organisiert, um eine barrierefreie Nutzung zu ermöglichen. Durch einen eingeschossigen Anbau und eine optimierte Grundrissgestaltung entstand ein komfortabler, zukunftsfähiger Wohnbereich auf einer Ebene. Die Erweiterung wurde gestalterisch und konstruktiv harmonisch in den Bestand integriert und unter Berücksichtigung aller baurechtlichen Vorgaben genehmigt. Das Ergebnis ist eine nachhaltige, barrierearme Wohnlösung, die den individuellen Anforderungen der Bauherren langfristig gerecht wird.





