Wohnraumerweiterung eines Reihenmittelhaus
Moderne Nachverdichtung im urbanen Kontext
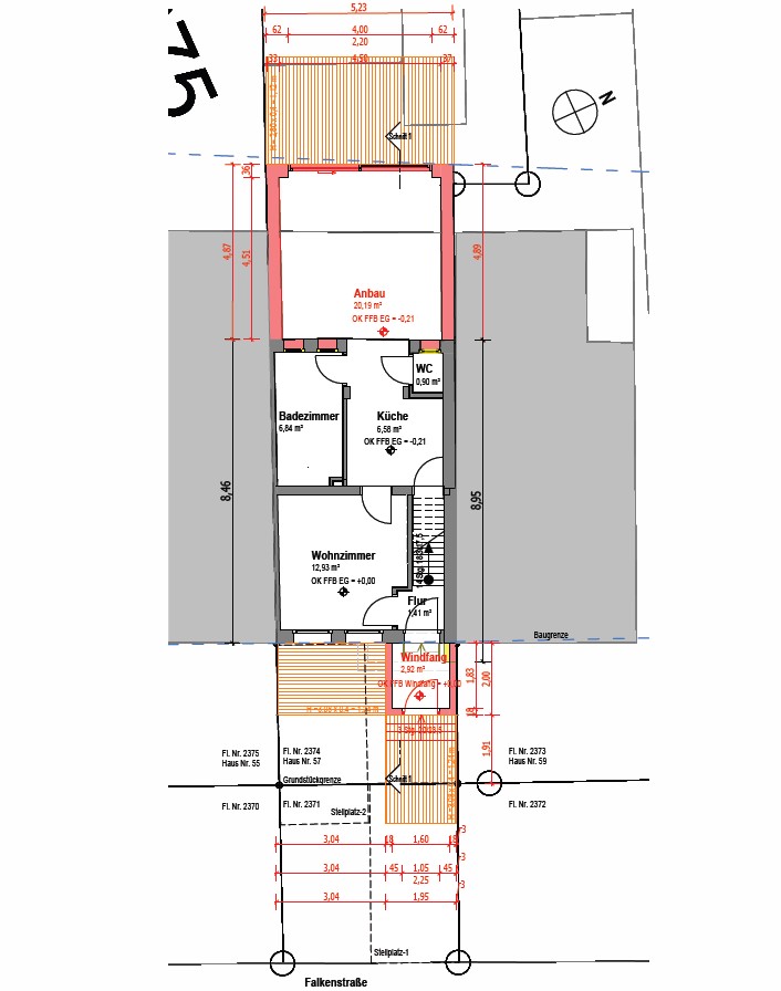
Mehr Wohnraum ohne Neubau: Dieses Stadthaus wurde durch eine gezielte Erweiterung im Gartenbereich effizient vergrößert.
Die Planung fügt sich harmonisch in die bestehende Umgebung ein und wahrt Proportion, Höhe und Charakter des Bestands.
Mit minimalen Eingriffen entstand eine wirtschaftliche Lösung mit maximalem Flächengewinn.
Helle, klar strukturierte Räume sorgen trotz dichter Bebauung für hohe Wohnqualität.
Ein Projekt, das zeigt, wie sich Bestand intelligent weiterentwickeln und nachhaltig aufwerten lässt.



