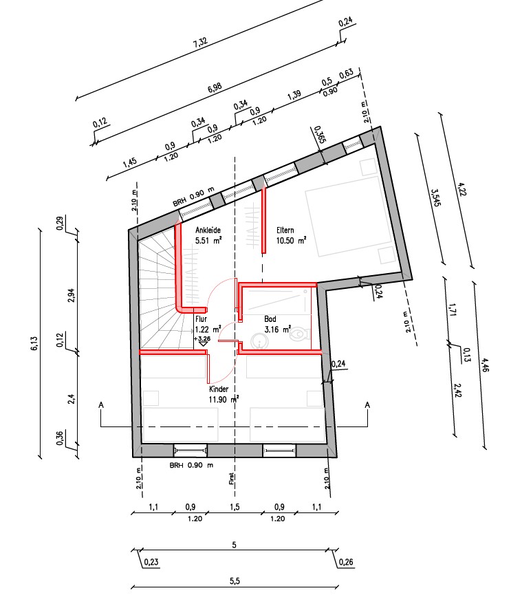
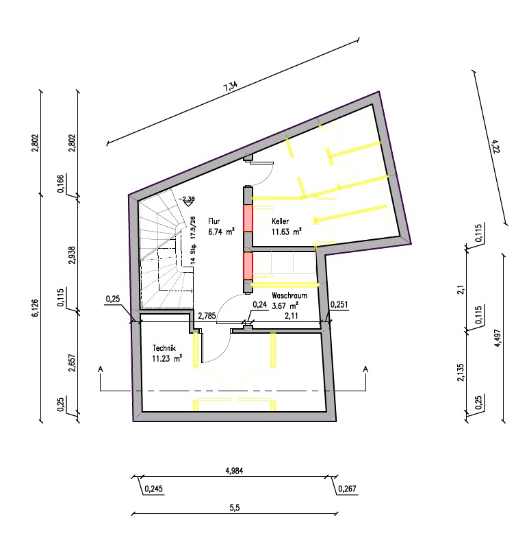
Umnutzung einer Weinstube in ein Einfamilienhaus
Eine ehemalige Weinstube in Landkreis Würzburg wurde zu einem modernen Einfamilienhaus umgestaltet. Dabei blieb der ursprüngliche Charakter des Gebäudes erhalten, während die Grundrisse neu organisiert und an die Bedürfnisse des Wohnens angepasst wurden. Durch die Kombination von Bestand und zeitgemäßer Architektur entstand ein Zuhause, das Geschichte bewahrt und hohen Wohnkomfort bietet. So wurde aus einem Ort der Geselligkeit ein privates Refugium mit individuellem Charme.











