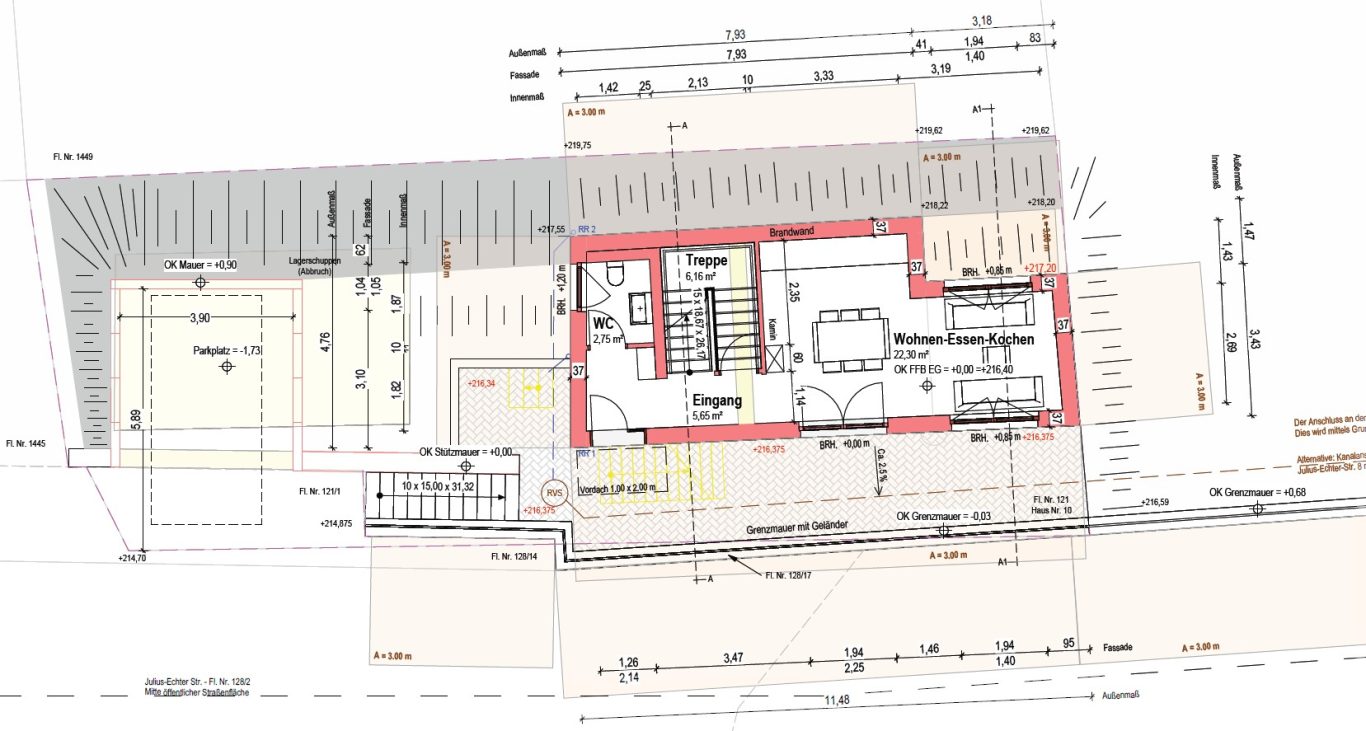
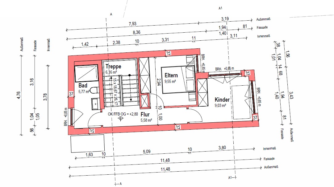
Ersatzneubau einer Scheune zu einem Einfamilienhaus
Eine bestehende Scheune wurde durch einen modernen Ersatzneubau ersetzt und zu einem großzügigen Einfamilienhaus umgenutzt. Dabei wurde die Umgebung berücksichtigt und gleichzeitig eine zeitgemäße Architektur mit klaren Formen und hoher Energieeffizienz umgesetzt. Die neuen Grundrisse schaffen helle, offene Räume mit optimaler Nutzung der Wohnfläche. So entstand ein Zuhause, das den Charme des Ortes bewahrt und gleichzeitig moderne Wohnansprüche erfüllt.





