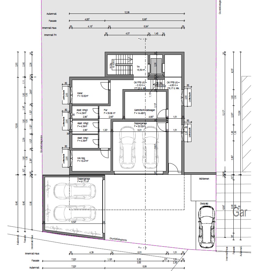
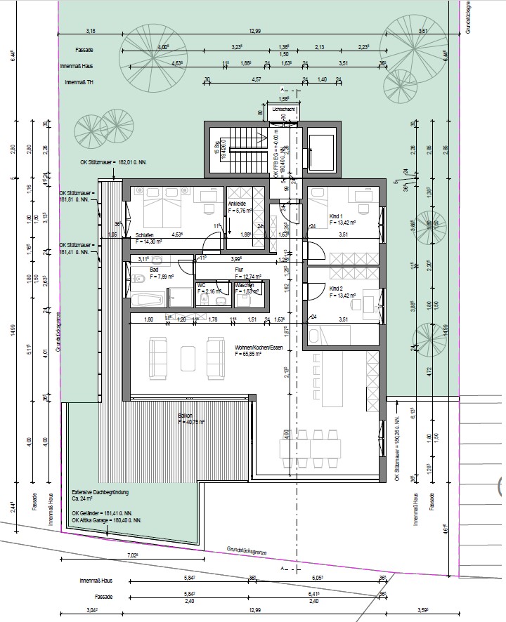
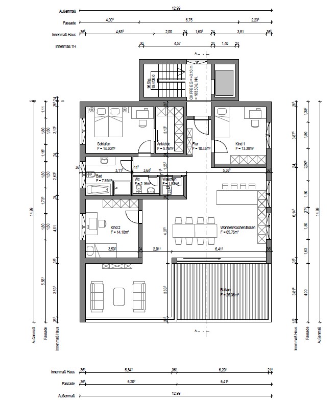
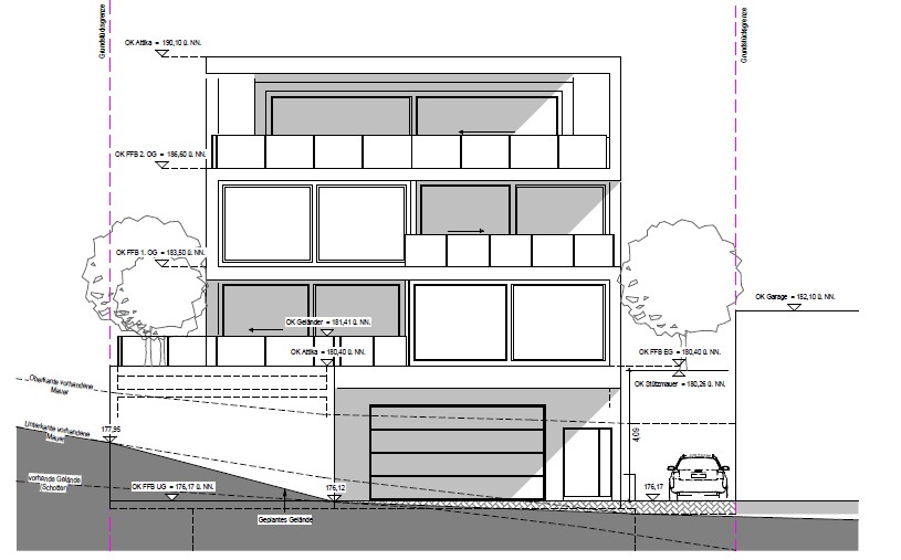
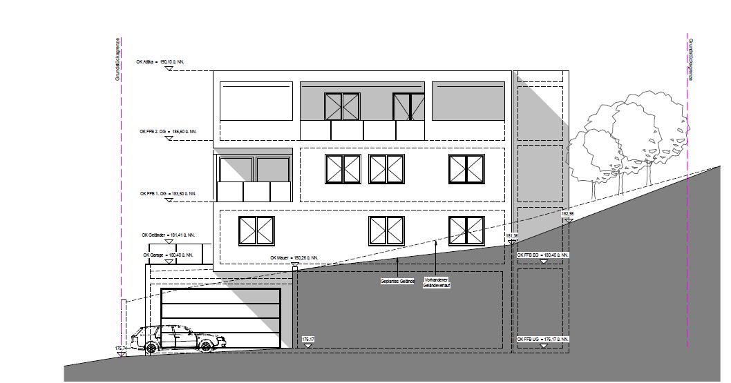
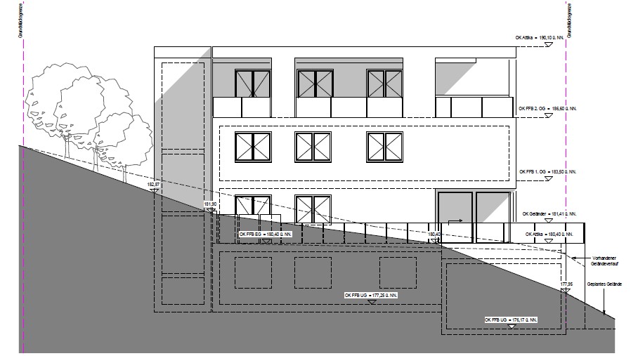
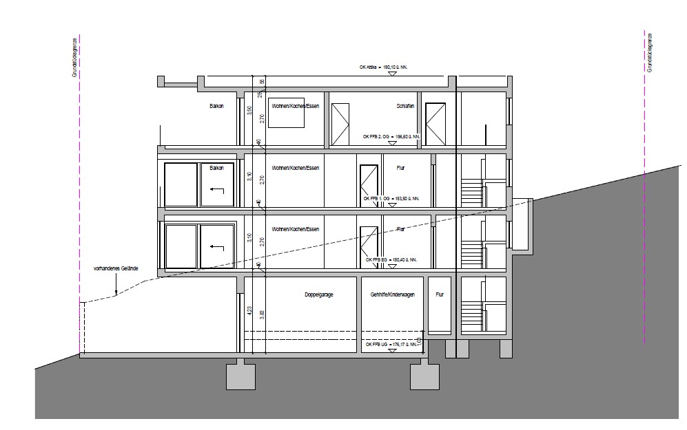
Neubau eines Mehrfamilienhauses mit Garage
Modernes Mehrfamilienhaus mit durchdachter Architektur und komfortablen Wohnflächen. Große Fenster, offene Grundrisse und eine harmonische Fassadengestaltung schaffen ein helles und zeitloses Zuhause. Die integrierte Garage sorgt für zusätzlichen Komfort.








