Neubau eines Einfamilienhauses mit Einliegerwohnung und Carport
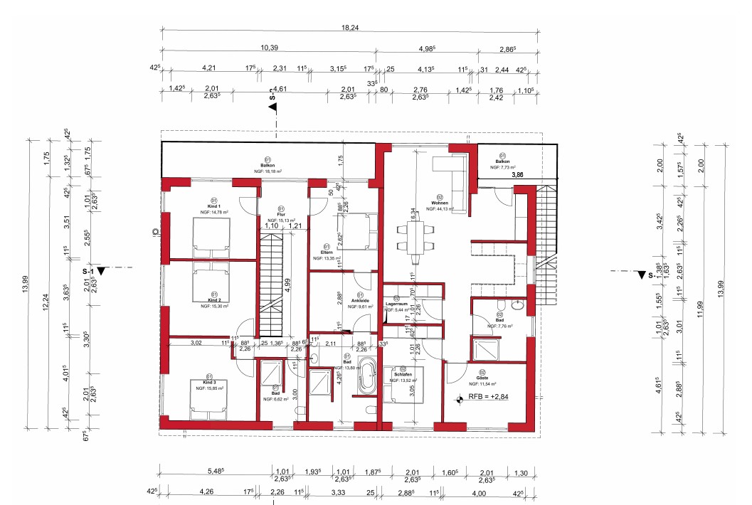
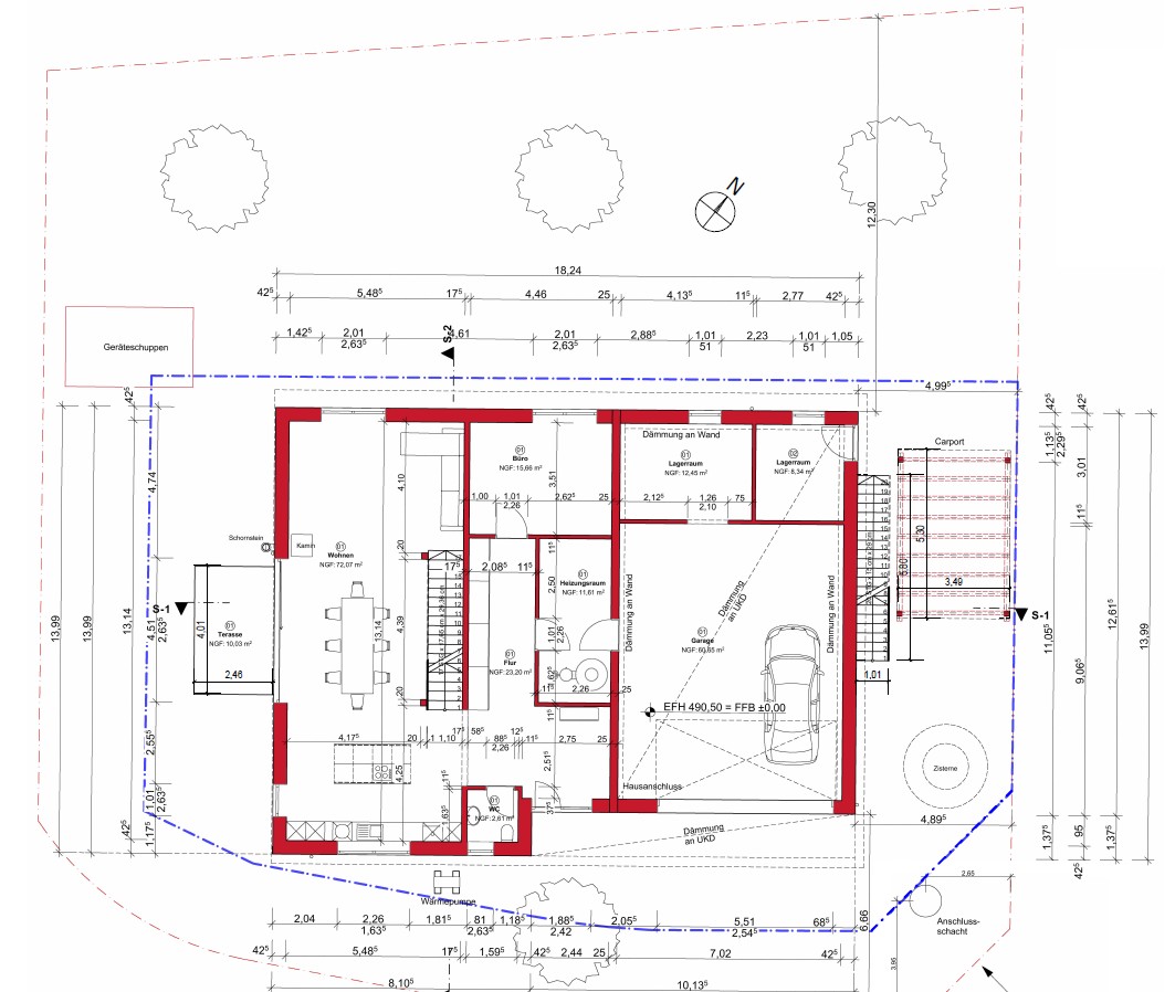
Modernes Einfamilienhaus mit Einliegerwohnung, das durch eine klare architektonische Struktur, funktionale Grundrisse und eine durchdachte Integration von Wohn- und Nebenflächen überzeugt. Das Gebäude vereint großzügige Wohnbereiche mit einer separaten Einliegerwohnung, die flexibel als zusätzlicher Wohnraum, für Mehrgenerationennutzung oder zur Vermietung genutzt werden kann. Der Entwurf zeichnet sich durch eine effiziente Grundrissorganisation aus: Offene Wohn- und Essbereiche im Erdgeschoss schaffen eine hohe Aufenthaltsqualität, während die privaten Rückzugsräume im Obergeschoss funktional und klar gegliedert sind. Große Fensterflächen sorgen für helle, freundliche Räume und eine enge Verbindung zum Außenraum.
Die integrierte Carport sowie die klar strukturierte Erschließung ermöglichen kurze Wege und eine optimale Nutzung des Grundstücks. Ergänzt wird das Konzept durch eine wirtschaftliche Bauweise und eine reduzierte, zeitlose Fassadengestaltung.
Das Projekt steht exemplarisch für eine moderne, kosteneffiziente Wohnarchitektur, die sowohl funktionale als auch gestalterische Anforderungen in Einklang bringt.








